泵的知识
立式多级华体·官方版网站登录入口安装步骤
发布时间:2021/9/4 20:31:23 来源:龙洋泵阀 阅读:3
立式多级华体·官方版网站登录入口安装步骤:
1. 安装前检査水泵和电机的完好惰况.
2. 泵安装位置应尽可能靠近水源处
3. 泵与底座安装有两种方式,一种是直接装在水泥基础上的刚性连接,另一种是采用JGD型减振器安装的柔性连接,具体方法见安装示意图所示.
4. 直接安装可将泵安放在基础上垫高30-40毫米(准备充填水泥浆之用).然后进行校正,并穿好地脚螺栓,充填水泥砂浆,经3~5天水泥干涸后.重新校正,待水泥完全干涸后,拧紧地脚螺栓的螺母.
5. 安装管路吋,逬、出水管路都应有各自的支承,不应使泵的法兰承受过大的管路重量.
6. 泵用于有吸程场合,进水管端应装有底闼.并且进出口管路不应有过多弯道.同时不得有漏水.漏气现象存在.
7. 在逬口管路上最好装有过滤网,以防杂质进入叶轮内部.滤网的有效面积应是进水管面积的3~4倍,以保证液体的自由畅通。
8. 为了维护和使用方便安全,在泵的进.出口管路上各安装一只调节阀及在泵出口附近安装一只压力表.以保证泵在额定范围内运行,确保泵的正常运行和使用寿命
9.逬口如需扩径连接,请选用偏心异径管遒接头
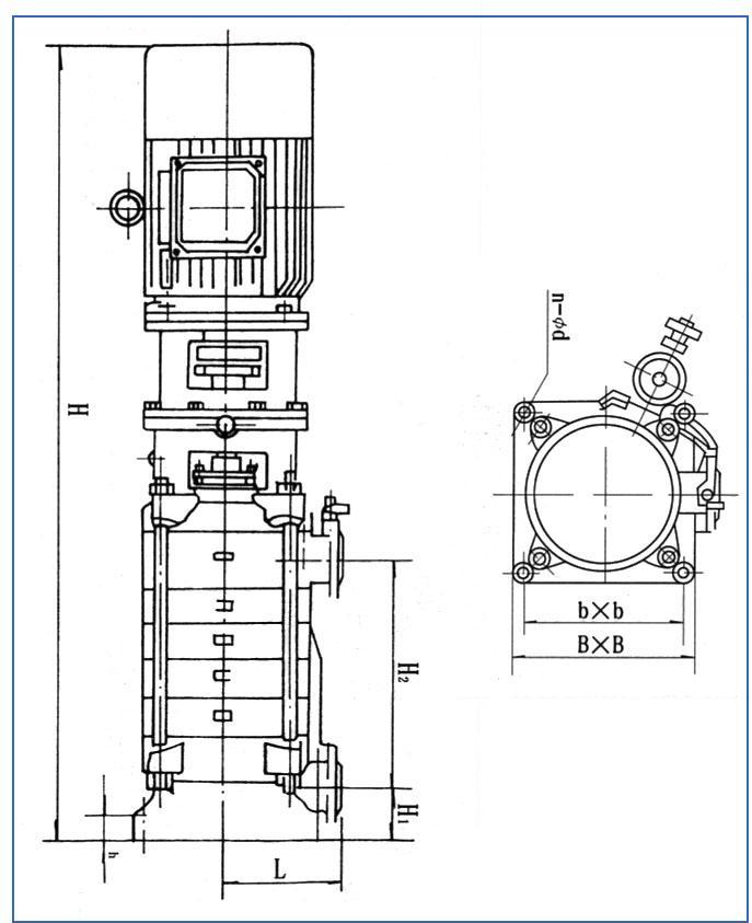
立式多级华体·官方版网站登录入口安装尺寸图:
本文标题:立式多级华体·官方版网站登录入口安装步骤
本文地址:/news/ns-205.html
转载注明:欢迎转载!转载请注明本文地址。
免责声明:本站原创文章,由龙洋泵阀整理发表,部分文章信息来源于网络以及网友投稿,不代表本站观点,如您对文章有任何意见欢迎在下方评论处与我们互动沟通。如本站文章和转稿涉及版权等问题,请作者在及时联系本站,我们会尽快处理。
本文地址:/news/ns-205.html
转载注明:欢迎转载!转载请注明本文地址。
免责声明:本站原创文章,由龙洋泵阀整理发表,部分文章信息来源于网络以及网友投稿,不代表本站观点,如您对文章有任何意见欢迎在下方评论处与我们互动沟通。如本站文章和转稿涉及版权等问题,请作者在及时联系本站,我们会尽快处理。
推荐知识
- 华体·官方版网站登录入口机械密封检修6大误解
- 管道华体·官方版网站登录入口有哪些?管道华体·官方版网站登录入口型号参数大全
- 立式管道华体·官方版网站登录入口和立卧式管道华体·官方版网站登录入口规格型号及参数大全
- 立式华体·官方版网站登录入口和卧式华体·官方版网站登录入口的区别及选用方法
- 华体·官方版网站登录入口和自吸泵区别有哪些?
- 立式多级华体·官方版网站登录入口安装方法步骤及使用注意事项
- 管道华体·官方版网站登录入口工作原理是怎么样的?
- 立式多级华体·官方版网站登录入口工作原理 图文解说立式多级华体·官方版网站登录入口工作原理
- 立式多级华体·官方版网站登录入口和单级华体·官方版网站登录入口区别有哪些
- 立式多级华体·官方版网站登录入口型号参数大全 立式多级华体·官方版网站登录入口型号参数一览表

最新知识
- G型单螺杆泵工作原理及结构图
- 立式多级华体·官方版网站登录入口维修注意事项
- 立式多级华体·官方版网站登录入口及变频控制柜技术要求
- 消防水泵控制柜技术要求
- 立式多级华体·官方版网站登录入口常见故障分析及其排除方法
- 立式多级华体·官方版网站登录入口常见安装误区
- GDL型立式多级管道华体·官方版网站登录入口产品特点及型号参数
- 无负压给水设备哪家好
- XBD-(I)型立式多级消防泵产品概述及性能参数
- 无负压给水设备工作原理
- SXBWP无负压给水设备技术参数表及报价表
- 立式多级华体·官方版网站登录入口维修注意事项
- 无负压给水设备的问题点
- 箱式无负压给水设备特点是什么?
- 哪家无负压变频给水设备质量好?
- 无负压给水设备样本
- 立式多级华体·官方版网站登录入口的执行标准
- 立式多级消防泵单机试车方案
- XBD-GDL立式多级泵结构图
- 无负压供水设备工作条件哪些?
- 立式多级华体·官方版网站登录入口常见安装误区
- 详细说明立式多级消防泵的基本操作
- 立式多级给水泵及变频控制柜技术要求
- 消防水泵控制柜技术要求
- 立式多级华体·官方版网站登录入口常见故障分析及其排除方法



